
The role of heritage rehabilitation in the contemporary architectural landscape is shaped by a wide range of research, beliefs, memories, and efforts aimed at redefining and strengthening our built environment. When undertaking a transformation, renovation, or preservation project, architects can employ diverse strategies and tools to encourage a meaningful coexistence between what already exists and what is newly introduced. Together with three Madrid-based architecture practices—SOLAR, Pachón-Paredes, and BA-RRO—we set out to engage in conversation and explore their creative processes and ideals, recognizing the complexity and value of historic buildings as repositories of materials, structures, and construction techniques from other eras.
What Motivates the Unveiling of a Structure or the Restoration of a Material to Its Original State?

Ba-rro: "Our starting point is always the context and what already exists."
We are interested in recognizing the value of things simply because they are there, without assuming that everything must be preserved as a matter of principle. The question isn't what can be kept, but what deserves to be kept in each specific project.
The decision to preserve, reveal, or remove doesn't stem from universal values or a nostalgic impulse, but from a situated interpretation: what role that element can play in a new transformation. We understand the project as a symbiosis between the existing and the new. Both must benefit from one another.
In many cases, interest arises precisely from a shift in meaning—when a material, system, or structure takes on a different role from the one originally intended. It is in these "translation games" that project opportunities emerge. When a structure ceases to be merely a technical support and begins to operate as spatial infrastructure—for example, by organizing uses, paths, or relationships between spaces—a clear reason appears to make it visible and central. At that point, preservation stops being a romantic gesture and becomes an architectural operation.
For this reason, rather than focusing on objects in themselves, the project concentrates on relationships: on joints, connections, and the ways in which the new rests on, adapts to, or puts tension on what already exists. That is where the architecture we make truly resides.

Pachón-Paredes: "We are driven by a critical attitude toward indiscriminate demolition and the accelerated obsolescence of the built environment."
We understand selective demolition as a design and cultural tool: a process of conscious subtraction that makes it possible to identify and reveal those layers of a building that have a more permanent character over time.
These layers—usually the structure and infrastructure—concentrate not only the greatest material and energy cost of a building, but also a fundamental part of its collective memory. Their spans, sections, materials, and construction systems speak of a specific historical moment and of particular technical, economic, and social conditions. Recovering them doesn't respond to a nostalgic logic, but to the desire to activate this accumulated knowledge as a contemporary resource—for example, in an apartment, by positioning it as part of a larger social structure such as the building that contains it or the neighborhood in which it is located.

Working with what already exists implies accepting the building as an active support, capable of accommodating multiple lives. By freeing these essential layers, the project can adapt to them rather than impose an external organization. This allows the more mobile layers—uses, objects, furniture, bodies—to take on the role of transformation and renewal. From this perspective, revealing structures and materials isn't an aesthetic gesture for us; it is the first step in a series of spatial sustainability strategies.
Understanding the structure's capacities, with the aim of proposing spaces that are as polyvalent as possible geometrically, dimensionally, and energetically, allows us to extend the useful life of the building and its spaces while reducing the material and energy impact of the intervention. In this way, we promote architectures capable of absorbing change without the need for constant replacement or renovation, especially in their more permanent layers. Ultimately, there is an ongoing dialogue and debate in our studio between permanence and change.
SOLAR: "We understand buildings of the past as repositories of materials, energy, and human effort."

We understand buildings of the past as repositories of materials, energy, and human effort; therefore, their transformation stands as an ecological imperative to which the new generations must undoubtedly respond. In fact, we maintain active research in the studio that we have called "Architectures of Repair," through which we constantly question and explore new forms of intervention in existing buildings.
How Today's Construction Technologies and Methods Engage With the Building Traditions and Architectural Standards of Other Eras?

Ba-rro: "We work with what is available, with what is common, understanding the construction site as a space of negotiation."
Our work isn't characterized by the use of particularly innovative technologies. The construction systems we employ are, in many cases, traditional and familiar. Our dialogue with tradition is shaped less by technical innovation than by a reconsideration of how we look at it.
We are interested in exploring how ordinary methods and materials—brick, metal, industrialized components, standard systems—can take on new meanings when they are freed from their historical or predetermined functions. Materials designed for a specific use are displaced and employed in other contexts, generating solutions that don't imitate historical forms but instead reinterpret and update construction logics that have accompanied architecture for decades.
A brickwork may vary and result not so much from a prior compositional effort as from structural requirements, construction junctions, or unforeseen conditions that arise during the building process itself. For us, construction is not merely the execution of a drawing; it becomes an active part of the design process, leaving its own imprint.
In this sense, rather than introducing new technologies, we are interested in rethinking existing ones—intensifying their capacities and allowing construction to have a direct and legible presence in the final space.
SOLAR: "When working on existing structures, our work often confronts a wide range of construction techniques."
When working on existing structures, our work often confronts a wide range of construction techniques, depending on the date of the original building. To these systems, we add the new layers of the project, establishing a dialogue of contrast between the new and the existing.

For example, in Casa Castelar, the duality between tradition and innovation, and between craftsmanship and industrialization, applied to both façades, gives the house two sharply contrasting fronts. On the one hand, the 19th-century exterior façade was rehabilitated following classical restoration models, where the production of templates, artisanal woodworking, and the revival of traditional trades unfolded at a slow pace. On the other hand, large openings were cut into the rear façade, and it was clad with a skin of recycled aluminum, perforated and cut by numerical control. This lightweight construction system facilitated installation, as well as potential future disassembly, reuse, and maintenance.
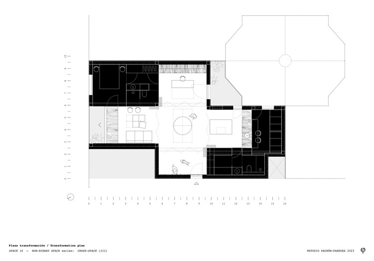
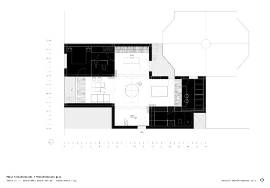
Pachón-Paredes: "We understand the dialogue between contemporary technologies and construction tradition through a stratified reading of space."
As mentioned earlier, existing architectures often concentrate, in their more permanent layers—usually structure and infrastructure—the materials, techniques, and construction systems most representative of their time: brick, concrete, steel, or wood, formalized in specific dimensions, spans, and proportions, sections, and finishes. These layers condense a body of technical and cultural knowledge that we are interested in preserving and activating, as they not only resolve construction issues but also represent a social and architectural response to a particular historical moment.

In contrast to these more permanent and passive layers, contemporary processes and technologies allow us to work with more ephemeral and active layers, associated with lightweight construction systems and indirectly with trades such as carpentry or metalwork. These layers incorporate advances in precision, assembly, disassembly, and transformation, and act as mediators between what already exists and new ways of inhabiting. In this context, the idea of the prototype becomes a central project tool: tables, cabinets, doors, or hybrid devices are conceived as open and dynamic systems, capable of testing new relationships between body, object, and space. These elements establish a series of synergies with both space and user, generating a kind of "ecology of objects" in which the interactions between them activate and flexibilize the space.

In parallel, there is a clear intention to recover vernacular traditions and passive energy systems found in architectures of the past—and from other contexts—understood not as form or style, but as spatial and thermodynamic knowledge. Traditionally, issues as fundamental as cross ventilation, natural lighting, and thermodynamic control were resolved through the design of space itself, with intermediate spaces, rather than simply through technologies added to the construction process. Perimeter cabinetry that functions as a thermal buffer, cross-shaped spaces that connect façades like a domestic plaza, or mobile systems that create gradients between the collective and the intimate are some of the reinterpreted strategies we commonly apply.
What Does Heritage Rehabilitation Contribute to Contemporary Housing? What Legacy Will Contemporary Architecture Leave in the Future?

Ba-rro: "Rehabilitation introduces a different way of thinking about the temporal boundaries of a project."
In contrast to closed and definitive designs, working with what already exists forces us to understand architecture as a process extended over time—both backward and forward—which requires remaining attentive to context and to imagine how a building will continue to adapt to changes in use, life, and spatial organization once we are no longer there.

In contemporary housing, we observe a tension between two simultaneous movements. On the one hand, increasingly flexible and adaptable solutions that understand everyday use as an architectural act in itself. On the other hand, a growing personalization that responds to highly specific ways of living, far removed from typification and homogenization. Rehabilitation makes it possible to reconcile these two tendencies by offering spatial structures that emerge from a particular context without being fully determined by it, allowing for multiple forms of appropriation over time.
In this sense, we are interested in thinking about architectures based less on closed typologies and more on archetypes that operate around fundamental actions such as inhabiting, producing, meeting, caring, or storing. The goal is not to fix repeatable forms; it is to design structures capable of enduring and transforming.
If contemporary architecture leaves a legacy, we believe it will lie less in finished objects and more in the ability to leave open scenarios: architectures that don't impose a way of life, but instead offer a clear, legible, and generous framework within which life can change, without the need for constant demolition and reconstruction.
SOLAR: "Rehabilitation must be understood as an exercise in ideological and aesthetic reflection."
In a consolidated urban environment such as Europe's, we believe that rehabilitation must be understood as an exercise in ideological and aesthetic reflection on how to incorporate the memory of what already exists into the contemporary project, always from a perspective that moves away from purely dogmatic preservation.

Pachón-Paredes: "The domestic space is quietly becoming one of the most relevant cultural, social, and productive infrastructures of the contemporary city."
The rehabilitation of domestic heritage has become a central point in architectural practice and debate today, across professional, academic, social, and political contexts. In Europe—and particularly in Spain—most of the built environment is residential and exhibits high levels of spatial, energy, and functional obsolescence. These dwellings were conceived for family and social models that are now outdated and poorly suited to the diversity of contemporary ways of living. In the face of a shortage of public housing and a lack of public competitions for new construction, the rehabilitation of the existing residential stock becomes a real opportunity to update ways of living at a smaller but strategically decisive scale: the so-called "renovations" of apartments and flats in collective housing buildings—a true laboratory for experimentation.

Intervening in what already exists makes it possible to question inherited domestic typologies and to propose more open spatial structures, capable of incorporating degrees of indeterminacy, flexibility, and polyvalence. Rehabilitation should not be limited to technical or energy upgrades, nor— as it is often understood in more institutional contexts— to mere compliance with building or planning codes. It must include a spatial reflection capable of accommodating not only domestic uses, but also productive, cultural, or recreational activities, which are increasingly present within the home. Inflation, rising living costs, and growing job insecurity have led many activities once tied to urban space to move into the domestic realm. This economic and emotional investment by households makes it essential to bring into the "interior" logics typically associated with public space: polyvalence, openness, negotiation, improvisation, and the coexistence of uses, without giving up privacy, intimacy, and refuge.

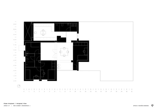
Through the NON–BINARY CROSS SPACE series of projects, we have developed a strategy for occupying and optimizing existing structures and infrastructures through rehabilitation projects in existing buildings. By applying strategies that treat the existing structure as a stable framework, material and energy impact is minimized while long-term polyvalence for users is maximized. In this way, rehabilitation not only preserves heritage but also reactivates and multiplies its capacity for use, allowing it to accommodate multiple lives without losing its identity.
We believe that the primary legacy of contemporary architecture should be measured not so much by its form as by its ability to remain relevant in contexts of change, uncertainty, and constant transformation. In this sense, concepts such as Non-Binary Space or spatial sustainability are not limited to experimenting with uses that change over time; rather, they question and move beyond the rigid categories that have historically defined architecture: living and working, formal and informal, interior and exterior, natural and artificial, public and private.


In this context, we believe that one of architecture's most important dialogues will be the one established between layers of differing permanence: long-lasting structures and infrastructures that provide support, and more active, flexible layers and devices capable of testing uses, processes, and forms of appropriation. This ecology of objects will make it possible to absorb change without altering the support system, turning the "prototype" into a fundamental tool for adapting permanent space to uncertainty and change.
We imagine architecture as open, latent infrastructure: spaces capable of being reinterpreted, appropriated, and transformed by future generations. Strategies that reduce both present and future interventions. Spaces that do not impose a single way of inhabiting them, but instead offer room for action, freedom, and adaptability. Reproductive and productive habitats intertwined. Leisure and business nurturing each other. Boundaries and relationships blurred between interior and exterior, as well as between the artificial and the natural.
In the face of an increasingly technologized and digital future—fast and immediate—it is also urgent to reintroduce nature, the human condition and scale, climate, and energy as fundamental design materials, reclaiming passive strategies from vernacular architecture. Ultimately, a non-binary, undefined, adaptable space—capable of accommodating the unpredictable without losing its identity: enduring spatial frameworks that allow freedom, adaptation, and genuine long-term sustainability. An architecture that functions simultaneously as a support for collective memory and as a catalyst for uncertainty.
This article is part of the ArchDaily Topic: Rethinking Heritage: How Today's Architecture Shapes Tomorrow's Memory. Every month we explore a topic in-depth through articles, interviews, news, and architecture projects. We invite you to learn more about our ArchDaily Topics. And, as always, at ArchDaily we welcome the contributions of our readers; if you want to submit an article or project, contact us.
























