
Lacaton & Vassal have announced the transformation of a former administrative center into a mixed-use residential and office building in Vannes, a medieval town in Brittany, northwest France. The project is part of a State policy to mobilize state-owned land for housing. In 2023, the French State launched a call for expressions of interest for a project on the former administrative complex, which housed several State services, in consultation with the City of Vannes. The winning proposal is a partnership between GReeStone Immobilier and Grand Ouest Immobilier, with an architectural team formed by the office of Anne Lacaton and Jean-Philippe Vassal, winners of the 2021 Pritzker Prize, in partnership with Emmanuelle Delage Architecte. According to the city government, the proposal was chosen with the aim of promoting resilience and limiting the carbon footprint by renovating rather than demolishing.
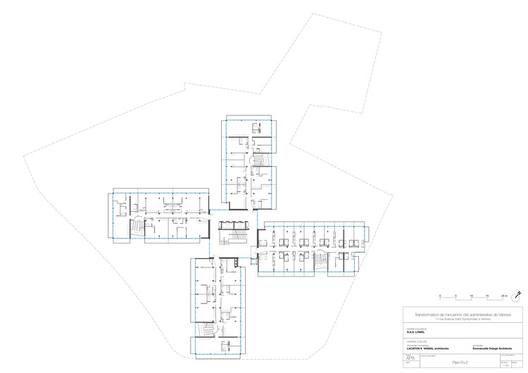
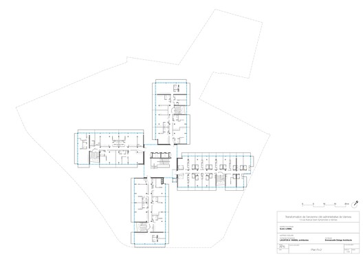
The Cité Administrative building is located on a site that is strategic for the city of Vannes, linking the future multimodal transport hub at the train station to the city center, with the ultimate goal of pacifying Boulevard de la Paix. Built in 1967, it occupies an emblematic place in the urban landscape and in residents' collective memory. Its architecture is described as sober, with an understated, minimalist aesthetic marked by horizontal lines and no ornamental features. The building was designed to become an annex to the hospital "in case of crisis," with a large central corridor capable of accommodating beds, located in the heart of the town. According to Lacaton & Vassal, "It looks like a typical modernist administrative building of the 1960s." The building's four wings form a cross-shaped plan repeated over six levels, with a setback attic level atop a three-level podium.


The project envisions a floor area of 16,163 m², with 14,301 m² of net usable floor area. According to the city government, the building will retain its general structure, with its asbestos-containing façades replaced by glass façades and the addition of projecting balconies running the length of the elevations. Notable architectural features, such as the entrance and central stairwell, will be preserved. The project takes advantage of an open structural system composed of posts, beams, and floor slabs, previously occupied by offices distributed on either side of a corridor with light partitions. This configuration offers flexibility for transformation into a mixed-use building. The proposal is organized around two existing volumes: a podium including offices, shops, and services, and the cross-shaped volume dedicated to the construction of 86 apartments (wings B, C, and D) and 90 apartments for students and young professionals (wing A). The city government specified that 35% of the housing units will be allocated to social and affordable housing.

Not only the structure but also remarkable architectural elements have been identified for preservation, including the entrance area linking the building to the street and the staircases. Like previous works by Lacaton & Vassal, the project relies on the implementation of bioclimatic principles, such as the envelope's responsiveness to sunlight penetration for winter comfort, and the greening of certain terraces and surrounding areas. The design includes extensions on all wings' façades from the first to the fifth floor to emphasize the image of an open building, imagined as a shared meeting place. Attic setbacks are also designed to create atypical apartments similar to villas with terraces. The characteristic balconies provide additional living space while protecting the façades from summer sun, contributing to thermal comfort and facilitating façade maintenance. Part of the roof terraces will also be accessible to some of the apartments on the building's first floor.


The preparatory studies are scheduled to be completed by the end of the first quarter of 2026. With a construction schedule estimated at 36 months, the project is expected to be delivered in the first quarter of 2028. Other recent refurbishment and renovation projects include The Egg performing arts center in Albany, within New York's Empire State Plaza, designed by the North American firm Harrison & Abramovitz in the 1960s; Studioninedots' transformation of a 200-year-old tobacco factory site into a mixed-use urban complex in Groningen, the Netherlands; and MVRDV's phased project to renovate the Plum Village Buddhist Monastery in southern Dordogne, France. In London, Studio Egret West was recently selected to masterplan the future phases of the Battersea Power Station urban regeneration project, while the Southbank Centre Brutalist cultural complex received heritage protection after a 35-year campaign.



















