Kaye Residences / Grzywinski+Pons

Kaye Residences / Grzywinski+Pons - Exterior PhotographyKaye Residences / Grzywinski+Pons - Interior Photography, Glass, ConcreteKaye Residences / Grzywinski+Pons - Image 4 of 38Kaye Residences / Grzywinski+Pons - Exterior PhotographyKaye Residences / Grzywinski+Pons - More Images+ 33

  • Architects: Grzywinski+Pons
  • Area Area of this architecture project Area:  35117
  • Year Completion year of this architecture project Year:  2026
  • Manufacturers Brands with products used in this architecture project
    Manufacturers:  Cassina, Flos, b&b italia , luceplan, mckinstry, pure and freeform
  • Lead Architects: Grzywinski + Pons
More SpecsLess Specs
Kaye Residences / Grzywinski+Pons - Exterior Photography
Courtesy of Grzywinski + Pons

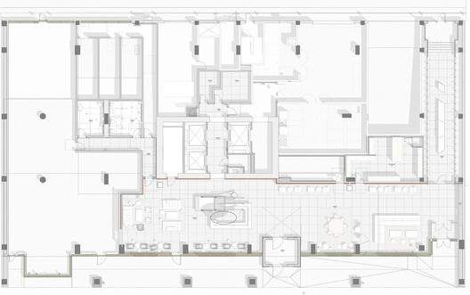
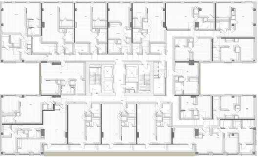
Text description provided by the architects. Kaye is a new thirty-one-story building in Seattle's Belltown neighborhood comprising 324 apartments, hospitality-grade amenities on the ground, seventh, and thirty-second floors, a co-working space on the mezzanine, and commercial space at grade. Grzywinski+Pons designed both the building and all of the interiors, as well as much of the furniture, for our client, Skanska.

Content Loader

Project gallery

See allShow less
About this office
Cite: "Kaye Residences / Grzywinski+Pons" 05 Apr 2026. ArchDaily. Accessed . <https://www.archdaily.com/1039999/kaye-residences-grzywinski-plus-pons> ISSN 0719-8884

Courtesy of Grzywinski + Pons

凯伊公寓 / Grzywinski+Pons

You've started following your first account!

Did you know?

You'll now receive updates based on what you follow! Personalize your stream and start following your favorite authors, offices and users.