Hongling Middle School Shixia Campus / Tumushi Architects

Hongling Middle School Shixia Campus / Tumushi Architects - Exterior Photography, CityscapeHongling Middle School Shixia Campus / Tumushi Architects - Exterior PhotographyHongling Middle School Shixia Campus / Tumushi Architects - Interior Photography, StairsHongling Middle School Shixia Campus / Tumushi Architects - Interior PhotographyHongling Middle School Shixia Campus / Tumushi Architects - More Images+ 49

More SpecsLess Specs
Hongling Middle School Shixia Campus / Tumushi Architects - Exterior Photography
© Chao Zhang

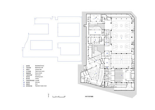
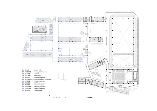
Intervention of Hongling Middle School Shixia Campus: A Street-Life Community — In 2018, Shenzhen launched the "8+1 New Campus Initiative" to explore new models for schools in high-density urban environments. The intervention of Hongling Middle School Shixia Campus—founded in 2004—became the only expansion project completed in the plan's first phase, laying groundwork for the subsequent "100 Campus Renewal" initiatives.

Content Loader

Project gallery

See allShow less
About this office
Cite: "Hongling Middle School Shixia Campus / Tumushi Architects" 14 Apr 2026. ArchDaily. Accessed . <https://www.archdaily.com/1039942/hongling-middle-school-shixia-campus-tumushi-architects> ISSN 0719-8884

© Chao Zhang

红岭中学石厦校区 / 土木石建筑设计事务所

You've started following your first account!

Did you know?

You'll now receive updates based on what you follow! Personalize your stream and start following your favorite authors, offices and users.