
-
Architects: van Bergen Kolpa architects
- Area: 4160 m²
- Year: 2025
-
Photographs:Filip Dujardin
-
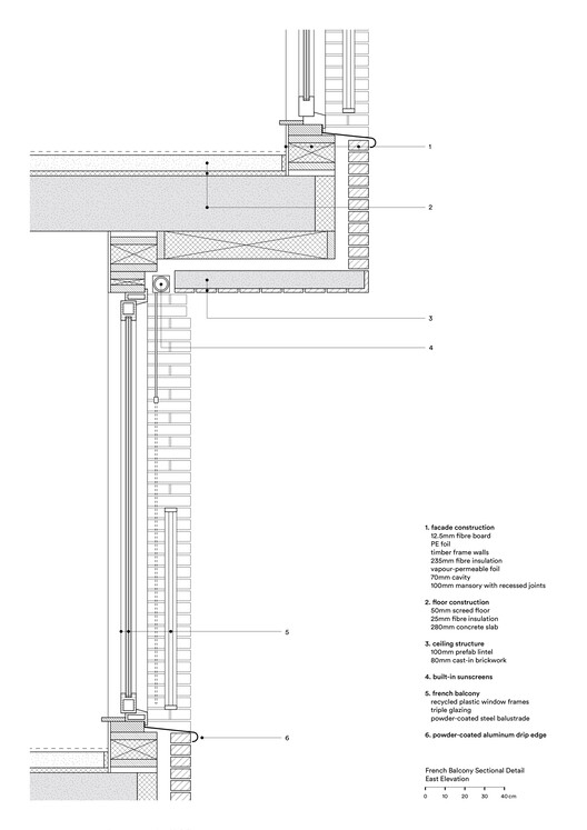
Manufacturers: Wienerberger, Kumij, OPTIGREEN, bam wonen

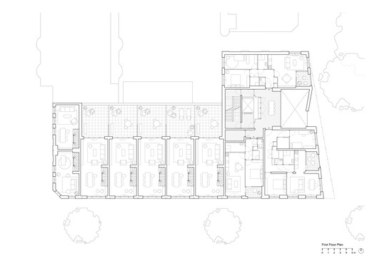
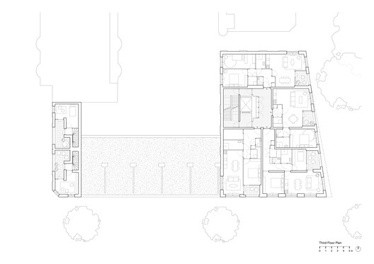
Text description provided by the architects. De Hartenrust is a new social housing building on the bend of the River Rotte in Rotterdam. The building consists of tower apartments, townhouses, and corner houses. Together they form a versatile sculpture that marks the connection between the densely populated Oude Noorden neighborhood and the green, livable riverbanks. The building contains 36 affordable social housing units, including family homes and apartments.









































