
-
Architects: Architectus
- Year: 2026
-
Photographs:Hufton Crow, Nicole England, Ned Donohoe

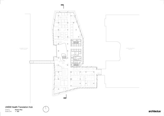
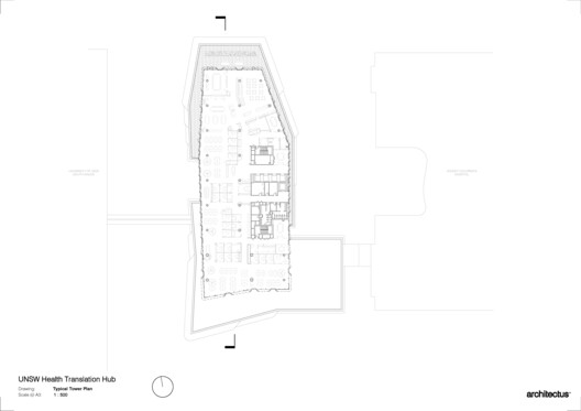
Text description provided by the architects. The UNSW Health Translation Hub (HTH) is conceived as a landmark for innovation, collaboration, and community, an architectural and landscape response that bridges the UNSW Kensington Campus with the Randwick Health and Innovation Precinct (RHIP). The design unites education, research, and healthcare within a connected ecosystem that fosters knowledge exchange and translational health outcomes, which shortens the feedback loop between health research and clinical practice. Subsequently, the discoveries from the laboratory ("bench") to patient care ("bedside") and vice versa are more efficient, ultimately, leading to improved health outcomes for the community.







































