
-
Architects: StudioAC
-
Photographs:Felix Michaud
-
Manufacturers: Atelier Vaste

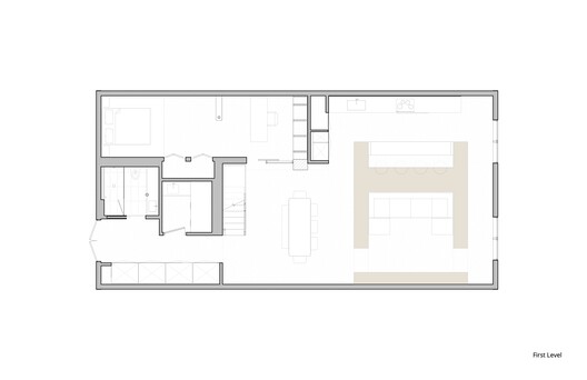
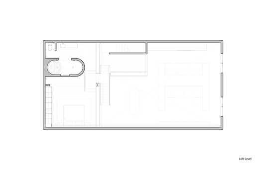
Text description provided by the architects. Located in Leslieville, in Toronto's east end, this loft renewal project set out to enhance the interior both aesthetically and functionally. Once a toy and bottling factory throughout the 1900s, the building became live/work lofts in the early 2000s. As time wore down the quality of finishes and fixtures, a new opportunity emerged to rework the loft's spatial dynamics.























