
-
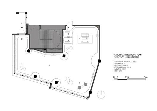
Architects: SHISUO design office
- Area: 226 m²
- Year: 2025
-
Photographs:Xiaobin Lv
-
Lead Architects: Sanif、Changshan

Text description provided by the architects. Confronted with an irregular original site, SHISUO returned to the fundamental element of fashion display: the hanging rail. A "single continuous rail" is allowed to morph in response to the existing walls, columns, and rainwater pipes. It traces the walls, bends to evade columns, and rises to allow passage, absorbing the chaotic nature of the environment and transforming it into a dynamic vitality.





























