
-
Architects: AGP Architects
- Area: 6640 m²
- Year: 2024
-
Photographs:Damir Otegen
-
Manufacturers: VEKA, Armstrong ceilings, Balta
-
Lead Architects: Kanashkova Svetlana

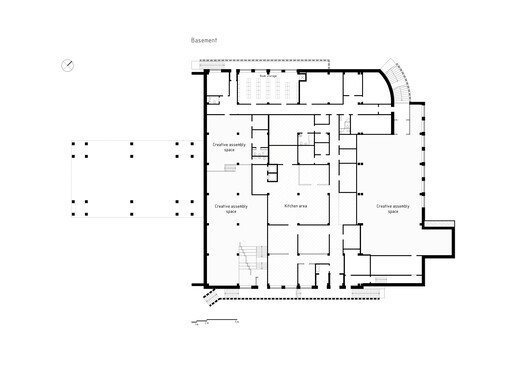
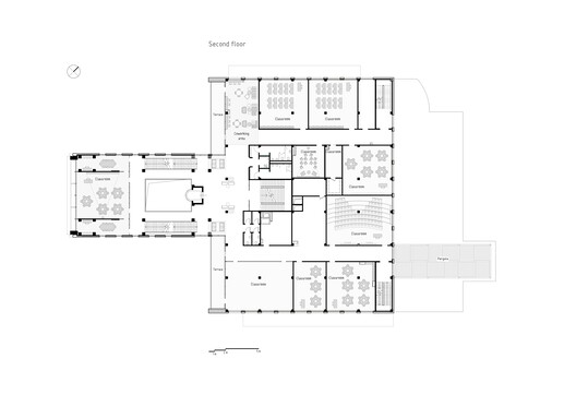
Text description provided by the architects. A former 1978 campus building at Narxoz University in Almaty has been transformed into a contemporary Business School that redefines how executive education is experienced in Central Asia, turning a forgotten architectural feature into the driving force of a new institutional identity.






























