
-
Architects: KCAP
- Area: 1315 m²
- Year: 2025
-
Photographs:Ossip van Duivenbode

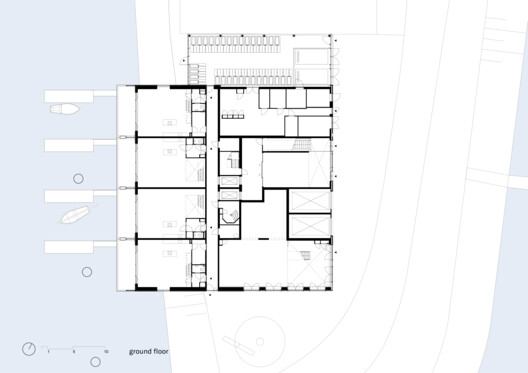
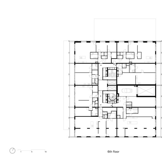
Urban Catalyst - Standing 74 meters tall at the tip of Feijenoord Island, De Piek transforms a neglected parking lot into a vibrant waterfront hub. This residential tower brings new life to a previously overlooked industrial area in South Rotterdam, with 142 apartments and a ground-floor café that opens the quay to public use. Strategically positioned next to the Piek bridge, De Piek is part of a broader vision to convert the former industrial zone into a lively urban quarter blending residential, commercial, and public functions. The tower creates space where living, meeting, and relaxation converge, restoring the relationship between city and river. As the first project in a series of planned developments, it demonstrates the area's potential and sets the stage for future transformation: a place where industrial rawness meets contemporary urban vitality.























