House in Karuizawa / nao architects office + Studio Hashimura

House in Karuizawa  / nao architects office + Studio Hashimura - Image 2 of 18House in Karuizawa  / nao architects office + Studio Hashimura - Interior Photography, Living Room, WoodHouse in Karuizawa  / nao architects office + Studio Hashimura - Interior Photography, Wood, ChairHouse in Karuizawa  / nao architects office + Studio Hashimura - Exterior Photography, WoodHouse in Karuizawa  / nao architects office + Studio Hashimura - More Images+ 13

Karuizawa, Japan
  • Category: Houses
  • Design Team: Yuta Tosaya
  • Landscape: Kosuke Katano, Yosuke Nishio
  • City: Karuizawa
  • Country: Japan
More SpecsLess Specs
House in Karuizawa  / nao architects office + Studio Hashimura - Exterior Photography, Wood
© Ken’ichi Suzuki

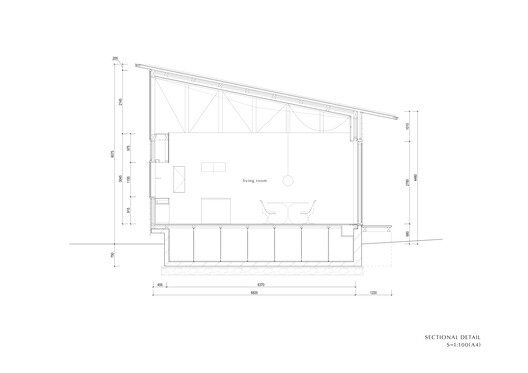
Text description provided by the architects. This villa in Karuizawa, Nagano Prefecture, was designed for a retired couple to spend their holidays. The rectangular volume, measuring 18.6 meters in width and 6.8 meters in depth, is placed along the front of a broad 990 m² site.

Content Loader

Project gallery

See allShow less
About this office
Cite: "House in Karuizawa / nao architects office + Studio Hashimura" 30 Apr 2026. ArchDaily. Accessed . <https://www.archdaily.com/1040970/house-in-karuizawa-nao-architects-office-plus-studio-hashimura> ISSN 0719-8884

You've started following your first account!

Did you know?

You'll now receive updates based on what you follow! Personalize your stream and start following your favorite authors, offices and users.