TN House / IDIN Architects

TN House / IDIN Architects - Image 10 of 35TN House / IDIN Architects - Image 2 of 35TN House / IDIN Architects - Interior Photography, Living Room, Sofa, Table, Chair, Lighting, GlassTN House / IDIN Architects - Exterior PhotographyTN House / IDIN Architects - More Images+ 30

Bangkok, Thailand
  • Architects: IDIN Architects
  • Area Area of this architecture project Area:  640
  • Year Completion year of this architecture project Year:  2025
  • Photographs
    Photographs:DOF Sky|Ground
  • Manufacturers Brands with products used in this architecture project
    Manufacturers:  Aluzat, Lamptitude, Ligman, Luxteel
  • Category: Houses
  • Interior Design: SEIZEtheDAY STUDIO Co., LTD
  • Landscape Architecture: Pergolar Co., Ltd.
  • City: Bangkok
  • Country: Thailand
More SpecsLess Specs
TN House / IDIN Architects - Image 5 of 35
© DOF Sky|Ground

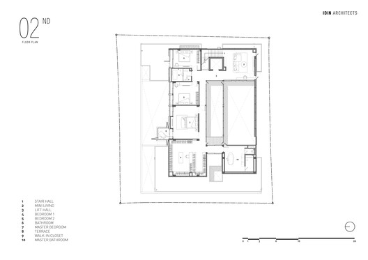
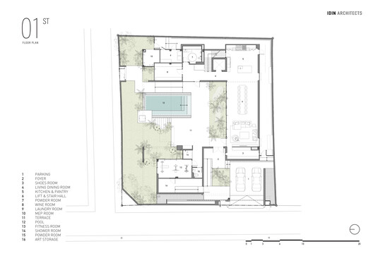
Text description provided by the architects. TN House is a two-story residence designed for a couple with a passion for art and a lifestyle that often includes hosting friends and social gatherings at home. Located on a corner plot in the city, the design takes its main concept from creating connections between interior and exterior spaces, allowing the house to adapt flexibly to different activities.

Content Loader

Project gallery

See allShow less
About this office
Cite: "TN House / IDIN Architects" 27 Apr 2026. ArchDaily. Accessed . <https://www.archdaily.com/1040950/tn-house-idin-architects> ISSN 0719-8884

You've started following your first account!

Did you know?

You'll now receive updates based on what you follow! Personalize your stream and start following your favorite authors, offices and users.