
-
Architects: 1-1 Architects
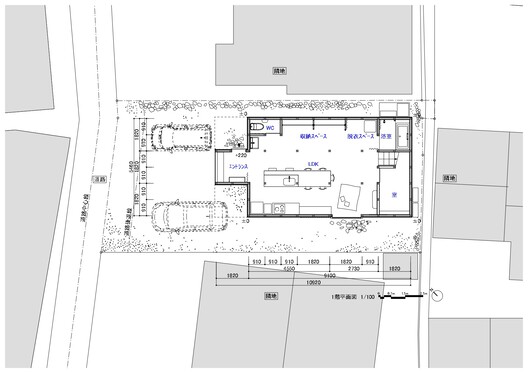
- Area: 71 m²
- Year: 2024
-
Photographs:Takashi Uemura
-
Manufacturers: LIXIL , Miratap, toolbox
-
Lead Architects: Yuki KAmiya, Yui Goto, Kazuya Shibata

Text description provided by the architects. This project is a house planned within a rural settlement located in an urbanization control area. The surrounding context is characterized by generous single-story farmhouse dwellings. However, due to the site's favorable location, land subdivision has recently accelerated, and an increasing number of parcels are being sold as speculative housing developments or ready-built homes. These houses, driven by profitability and ease of sale, tend to maximize building coverage ratios and are subdivided internally into increasing numbers of nLDK units. As a result, the neighborhood has become denser, with deteriorating daylighting and ventilation conditions, confining residents within overcrowded and inflexible interiors.
































