
-
Architects: CCDI Dongxiying Studio
- Area: 63981 m²
- Year: 2024
-
Photographs:Zhaoming Wang, Xiongyi Zhu, Yanjie Xu
-
Lead Architects: Zhu Xiongyi, Wang Zhaoming

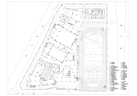
Location Analysis — The Dasha River Ecological Corridor flows along the western side of the site and empties into the sea, using water as a link to connect various educational and urban public facilities. Leveraging the improvement of the Dasha River, Pingshan School has become a significant spatial node at the northern end of the Dasha River.













































