The Third Place Mt.Fuji / Kubo Tsushima Architects

The Third Place Mt.Fuji / Kubo Tsushima Architects - Interior Photography, Dining roomThe Third Place Mt.Fuji / Kubo Tsushima Architects - Image 17 of 35The Third Place Mt.Fuji / Kubo Tsushima Architects - Interior Photography, Living RoomThe Third Place Mt.Fuji / Kubo Tsushima Architects - Exterior PhotographyThe Third Place Mt.Fuji / Kubo Tsushima Architects - More Images+ 30

Fujikawaguchiko, Japan
More SpecsLess Specs
The Third Place Mt.Fuji / Kubo Tsushima Architects - Exterior Photography
© Masao Nishikawa

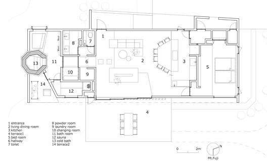
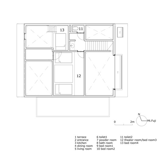
A composition of experiences and sensations in dialogue with Mount Fuji — Located on a richly undulating site at the foothills of Mount Fuji, this project consists of a cluster of three private villas. Each building is carefully positioned along a shared axis oriented toward the borrowed scenery of the mountain. While unified by this orientation, the three architectures embody distinct spatial conditions—floating, sinking, and enveloping—through which perception, bodily awareness, and the experience of time are reconfigured.

Content Loader

Project gallery

See allShow less
About this office
Cite: "The Third Place Mt.Fuji / Kubo Tsushima Architects" 23 Apr 2026. ArchDaily. Accessed . <https://www.archdaily.com/1040908/the-third-place-muji-kubo-tsushima-architects> ISSN 0719-8884

You've started following your first account!

Did you know?

You'll now receive updates based on what you follow! Personalize your stream and start following your favorite authors, offices and users.