Woowa Brothers Office / unseenbird

Woowa Brothers Office / unseenbird - Interior Photography, Stairs, Wood, Lighting, GlassWoowa Brothers Office / unseenbird - Image 3 of 36Woowa Brothers Office / unseenbird - Interior Photography, Lighting, Chair, GlassWoowa Brothers Office / unseenbird - Image 5 of 36Woowa Brothers Office / unseenbird - More Images+ 31

  • Architects: unseenbird
  • Area Area of this architecture project Area:  5965
  • Year Completion year of this architecture project Year:  2026
  • Photographs
    Photographs:Lee Pyojoon
  • Lead Architects: Bioh Seon
More SpecsLess Specs
Woowa Brothers Office / unseenbird - Interior Photography, Stairs, Wood, Lighting, Glass
© Lee Pyojoon

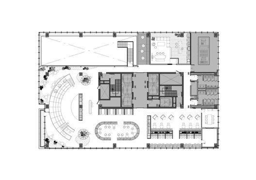
Text description provided by the architects. Societal changes are influencing the composition of offices as well. Woowa Brothers, rapidly adapting to the times, is creating a new future by combining technology with the relationship between nature and people. This attitude is reflected in the office space, leading to a direction that pursues flexible and nature-friendly environments.

Content Loader

Project gallery

See allShow less
About this office
Cite: "Woowa Brothers Office / unseenbird" 24 Apr 2026. ArchDaily. Accessed . <https://www.archdaily.com/1040897/woowa-brothers-office-unseenbird> ISSN 0719-8884

You've started following your first account!

Did you know?

You'll now receive updates based on what you follow! Personalize your stream and start following your favorite authors, offices and users.