House & Office SH / 1-1 Architects

House & Office SH / 1-1 Architects - Image 2 of 31House & Office SH / 1-1 Architects - Interior Photography, Wood, Lighting, ChairHouse & Office SH / 1-1 Architects - Interior Photography, Kitchen, WoodHouse & Office SH / 1-1 Architects - Exterior Photography, BalconyHouse & Office SH / 1-1 Architects - More Images+ 26

Nagoya, Japan
More SpecsLess Specs
House & Office SH / 1-1 Architects - Exterior Photography, Balcony
© Takashi Uemura

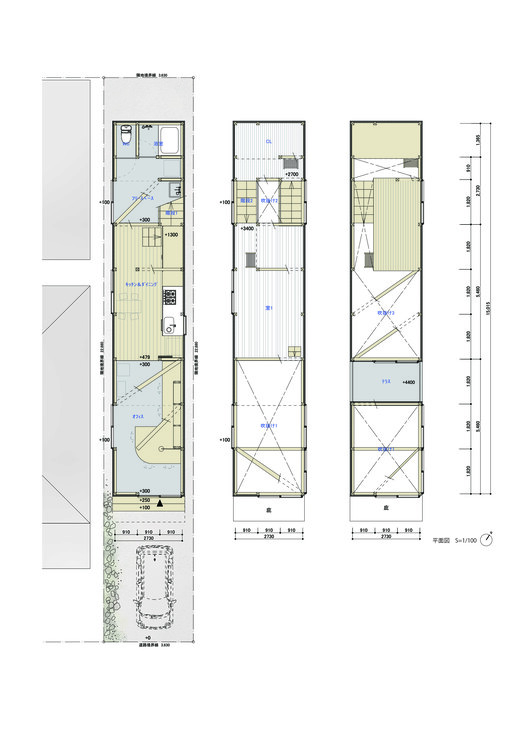
Text description provided by the architects. This project is for a new office and residence for a construction company with a 50-year history in Nagoya, Aichi Prefecture. The client owned two large warehouses near the site, both overflowing with unused timber—mostly surplus wood ordered in bulk by the previous generation, who had been a carpenter, along with reclaimed lumber collected during demolition. Although there were no clear plans for its use, the material had continued to accumulate year after year, too valuable to discard. Many construction companies and lumberyards across Japan hold similar stockpiles of timber lying dormant in warehouses.

Content Loader

Project gallery

See allShow less
About this office
Cite: "House & Office SH / 1-1 Architects" 20 Apr 2026. ArchDaily. Accessed . <https://www.archdaily.com/1040761/house-and-office-sh-1-1-architects> ISSN 0719-8884

You've started following your first account!

Did you know?

You'll now receive updates based on what you follow! Personalize your stream and start following your favorite authors, offices and users.