
-
Architects: Sonelo Architects
- Area: 162 m²
- Year: 2022
-
Photographs:Pier Carthew

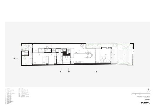
Text description provided by the architects. Situated in a medium-density suburb, Burnley is a composed urban infill to a row of townhouses that has replaced the formerly dominant terrace houses in the area. Sheltered behind the hit-and-miss brickwork is a tranquil home with robust materiality, unexpected sky views, and access to plenty of greenery.



































