Vesp House / Story Architecture

Vesp House / Story Architecture - Interior Photography, Dining room, ChairVesp House / Story Architecture - Image 3 of 30Vesp House / Story Architecture - Image 4 of 30Vesp House / Story Architecture - Image 5 of 30Vesp House / Story Architecture - More Images+ 25

Ho Chi Minh City, Vietnam
  • Architects: Story Architecture
  • Area Area of this architecture project Area:  160
  • Year Completion year of this architecture project Year:  2025
  • Photographs
    Photographs:Quang Dam
  • Manufacturers Brands with products used in this architecture project
    Manufacturers:  An Cường, Vietceramics, Đông Phương Alu&Glass (http://dongphuongnk.com/)
  • Lead Architect: Nguyễn Kava
More SpecsLess Specs
Vesp House / Story Architecture - Image 7 of 30
© Quang Dam

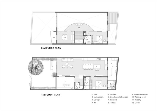
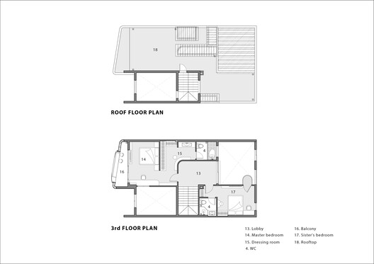
Text description provided by the architects. The homeowner is a young man, but has a great love for old Vespas. He and his friends often travel on old Vespas throughout the provinces and cities of Vietnam. But then the time came for him to build a house and get married. He confided to the architect that he probably won't travel much anymore, and he will spend more time in the house. He also wants to build a house not only for him and his wife to live in, but also for his parents, grandmother, and younger sister to live with. The idea started from the homeowner's bedroom.

Content Loader

Project gallery

See allShow less
About this office
Cite: "Vesp House / Story Architecture" 14 Apr 2026. ArchDaily. Accessed . <https://www.archdaily.com/1040614/vesp-house-story-architecture> ISSN 0719-8884

You've started following your first account!

Did you know?

You'll now receive updates based on what you follow! Personalize your stream and start following your favorite authors, offices and users.