Joren-ji Ossuary / OOOarchitecture

Joren-ji Ossuary / OOOarchitecture - Image 5 of 28Joren-ji Ossuary / OOOarchitecture - Image 10 of 28Joren-ji Ossuary / OOOarchitecture - Image 3 of 28Joren-ji Ossuary / OOOarchitecture - Interior Photography, Wood, BenchJoren-ji Ossuary / OOOarchitecture - More Images+ 23

  • Architects: OOOarchitecture
  • Area Area of this architecture project Area:  78
  • Year Completion year of this architecture project Year:  2024
  • Photographs
    Photographs:Yosuke Harigane
  • Lead Architects: Yo Sato, Ryohei Baba, Hikomaru Wada
  • General Contractor: Yasutsune-gumi
  • Engineering & Consulting > Structural: Takashi Baba Structural Design Office
  • City: Nogata
  • Country: Japan
More SpecsLess Specs
Joren-ji Ossuary / OOOarchitecture - Image 5 of 28
© Yosuke Harigane

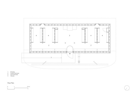
Text description provided by the architects. As Japan's regional communities face population decline and changing burial customs, temples are increasingly required to rethink how spaces for remembrance are built and used. Joren-ji Ossuary replaces an aging reinforced-concrete structure with a new timber building made from locally sourced cedar, proposing a contemporary model for sacred architecture rooted in continuity rather than nostalgia.

Content Loader

Project gallery

See allShow less
About this office
Cite: "Joren-ji Ossuary / OOOarchitecture" 25 Apr 2026. ArchDaily. Accessed . <https://www.archdaily.com/1040550/joren-ji-ossuary-oooarchitecture> ISSN 0719-8884

You've started following your first account!

Did you know?

You'll now receive updates based on what you follow! Personalize your stream and start following your favorite authors, offices and users.