
-
Architects: Lahznimmo Architects
- Area: 2863 m²
- Year: 2025
-
Photographs:Brett Boardman
-
Manufacturers: Autex Acoustic, Equitone, Sculptform
-
Lead Architects: Andrew Nimmo, Annabel Lahz, Hugo Cottier

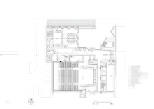
Text description provided by the architects. The Gosford Regional Library has been designed to generate a civic presence within the Civic Heart of Gosford, directly addressing the public space of Kibble Park. Kibble Park itself serves the symbolic role of 'Town Square', and the new Library will, in turn, symbolically act as a 'Town Hall'.















