House of Light Oaxaca / T804 Arquitectura e Interiorismo Estratégico

House of Light Oaxaca / T804 Arquitectura e Interiorismo Estratégico - Interior Photography, Wood, Facade, Door, Concrete, BalconyHouse of Light Oaxaca / T804 Arquitectura e Interiorismo Estratégico - Interior Photography, Kitchen, LightingHouse of Light Oaxaca / T804 Arquitectura e Interiorismo Estratégico - Interior Photography, Stairs, WoodHouse of Light Oaxaca / T804 Arquitectura e Interiorismo Estratégico - Interior Photography, BathroomHouse of Light Oaxaca / T804 Arquitectura e Interiorismo Estratégico - More Images+ 20

San Agustín Yatareni, Mexico
  • Area Area of this architecture project Area:  235
  • Year Completion year of this architecture project Year:  2025
  • Photographs
    Photographs:Amy Bello
  • Manufacturers Brands with products used in this architecture project
    Manufacturers:  Comex, Grupo Arkos México, Ilumileds, Tecnolite
  • Lead Architects: Samantha Betancourt, Carlos Canseco
  • Category: Houses, Renovation
  • Design Team: Yamil Caballero, Suylen Crespo
  • Technical Team: Domingo Rojas, Nicolás Cruz, Giovanni Antonio
  • Engineering And Consulting > Electrical: Arq-lux sa de cv
  • Engineering And Consulting > Structural: Ing. Miguel Ángel Torres
  • City: San Agustín Yatareni
  • Country: Mexico
More SpecsLess Specs
House of Light Oaxaca / T804 Arquitectura e Interiorismo Estratégico - Interior Photography, Wood, Facade, Door, Concrete, Balcony
© Amy Bello

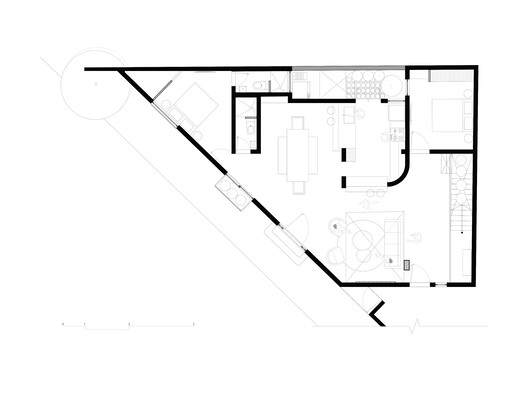
Text description provided by the architects. Casa Luz is an architectural and interior design intervention in an existing home in the city of Oaxaca that reflects on how to inhabit from a local perspective without resorting to nostalgic or literal gestures. The proposal is built upon a sensitive reading of the context, where materiality, light, and craftsmanship become the primary means of expression.

Content Loader

Project gallery

See allShow less
About this office
Cite: "House of Light Oaxaca / T804 Arquitectura e Interiorismo Estratégico" [Casa Luz Oaxaca / T804 Arquitectura e Interiorismo Estratégico] 20 Apr 2026. ArchDaily. Accessed . <https://www.archdaily.com/1040543/house-of-light-oaxaca-t804-arquitectura-e-interiorismo-estrategico> ISSN 0719-8884

You've started following your first account!

Did you know?

You'll now receive updates based on what you follow! Personalize your stream and start following your favorite authors, offices and users.