
-
Architects: Ximenes Leite Arquitetura
- Area: 1350 m²
- Year: 2024
-
Photographs:Felipe Catellari
-
Lead Architects: Bruna Ximenes, André Leite

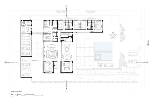
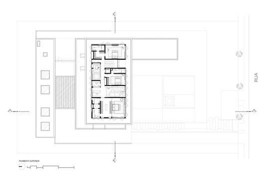
Text description provided by the architects. Located in the Fazenda da Grama Condominium, in the interior of the state of São Paulo, the GLG Residence emerges from a clear interpretation of volumes and layout to organize the uses of the house. The architecture and interior design project was conceived in an integrated manner, seeking balance between privacy, coexistence, and connection with the surroundings.
























