
-
Architects: aceboXalonso studio
- Year: 2025
-
Lead Architects: Victoria Acebo, Ángel Alonso

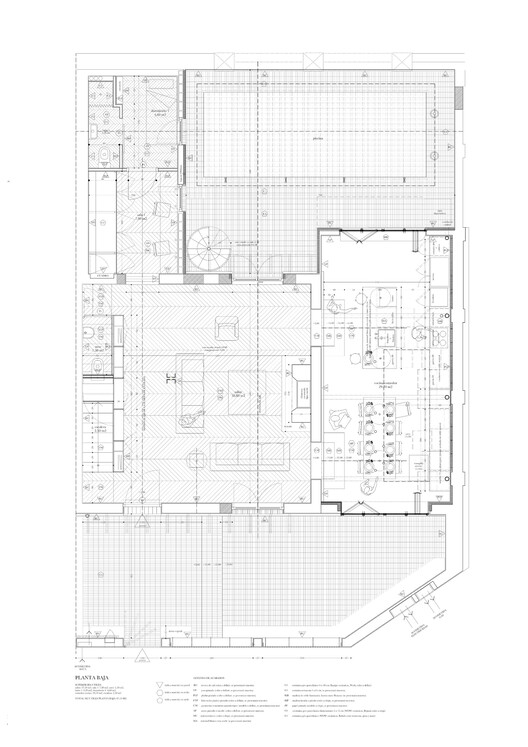
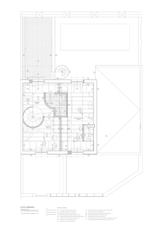
Text description provided by the architects. In 1971, the then-owners of a row-end single-family home located in one of the historical neighborhoods of Madrid incorporated into it one of the iconic objects of the imagery of developmental Spain: the blue pool. For their private use, they decided to build a pool, sacrificing nearly all of the twenty-eight square meters that made up the backyard of their home, which until then had been a place for children's revelry and a respite from domestic tasks. It is possible that the decision was made simply in response to changing circumstances: with the children grown and the housekeeper working outside the home, the yard fell into disuse; or perhaps, it was the pool, as a fantasy imported from postcards of sun and tourism, that managed to carve out a place as a desire among other domestic needs.




























