
-
Architects: Mork-Ulnes Architects
- Area: 134 m²
- Year: 2024
-
Photographs:Joe Fletcher
-
Manufacturers: Miele, Allied Maker, Bisazza, Bocci, Established & Sons, Rubio Monocoat, Vola

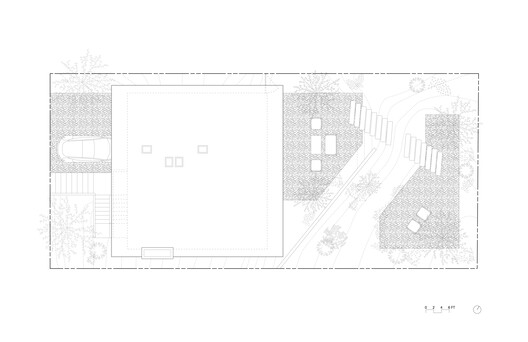
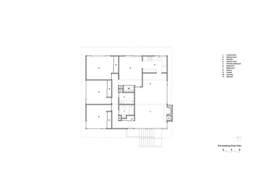
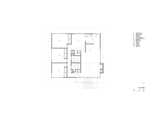
Text description provided by the architects. Mork-Ulnes Architects has just completed a restoration of a Roger Lee-designed home in the Berkeley Hills, honoring its mid-century roots while thoughtfully updating the space for modern living.






















