
-
Architects: Haworth Tompkins
- Area: 980 m²
- Year: 2025
-
Photographs:Philip Vile, Mark Carline, Theatr Weston, Fred Howarth

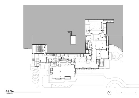
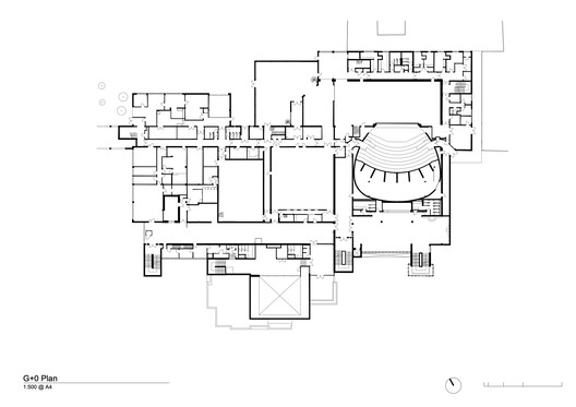
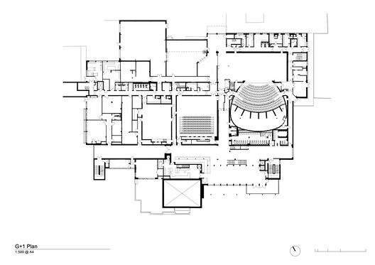
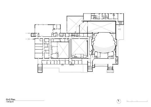
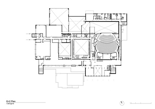
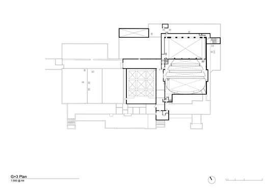
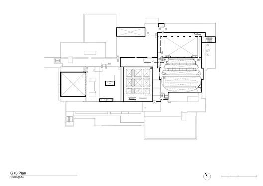
Text description provided by the architects. Haworth Tompkins has recently completed the transformation of Wales' largest producing theater, Theatr Clwyd, a Grade II-listed theater and cultural centre in Mold, North Wales. The major redevelopment transforms the landmark 1970s arts complex into a vibrant, sustainable, and accessible civic destination, equipped to support professional productions, participatory work, education, and serve its local community for generations to come. Theatr Clwyd sits on a hillside above the town of Mold and was built as a regional arts centre to provide cultural opportunities for people living in North Wales. It was originally designed to accommodate multiple performance spaces, TV studios, a gallery, and function rooms. Designed by R.W.Harvey, the county architect for Flintshire, the building was opened as 'Clwyd Theater and Educational Technology Centre' on the 21st May 1976, by Queen Elizabeth II.














































