
-
Architects: Team Tonbo
- Area: 180 m²
- Year: 2025
-
Manufacturers: Schüco

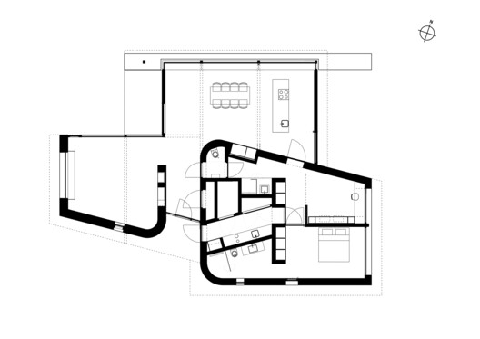
Text description provided by the architects. The starting point for the design was the site: a plot where farm sheds and stables once stood, with uninterrupted views over meadows and woodland. The clients are a couple without children and did not want a house larger than necessary. Their program consisted of three parts: living, sleeping, and eating.































