
-
Architects: Filip Karl Edward Arkitektur
- Area: 95 m²
- Year: 2025
-
Photographs:Ditte Auguste Mørkholt

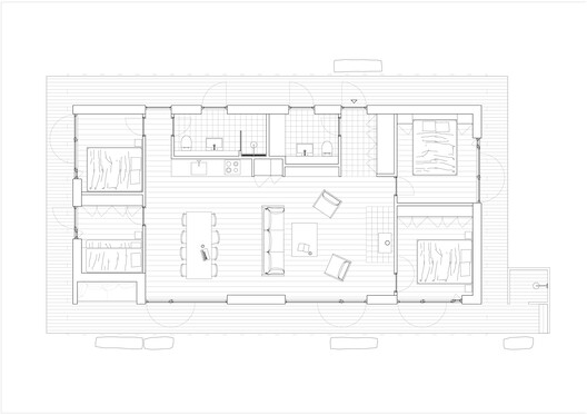
Text description provided by the architects. This vacation house is a "Less is Enough" project. The client's starting point was the need to build a new summer house that could accommodate the entire family, allowing them to spend the whole summer together in one place. Instead of prioritizing large spaces and maximum comfort, this compact house embraces the idea that it is only a summer house. The everyday standards of permanent living are intentionally left behind. Rather than spending the budget on maximizing square meters, the project focuses on investing in durable, sustainable materials and a thoughtful spatial concept.














