
-
Architects: Anonym
- Area: 1000 m²
- Year: 2024
-
Photographs:Ketsiree Wongwan, Soopakorn Srisakul
-
Lead Architects: Phongphat ueasangkhomset

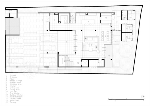
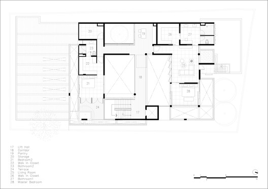
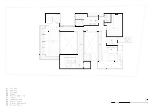
Text description provided by the architects. Sailom House is a four-story home that accommodates members from three families. Anonym designs the inside to look and feel like a service apartment with functional spaces that each family member can use freely and separately on each floor. The first floor consists of common areas such as the living room and kitchen, while the upper floors house bedrooms, more living areas, and small pantries. Every story is linked together via two internal courtyards that open up into the void, running from the ground to the fourth floor.



























