
-
Architects: Studio VDGA
- Area: 4500 m²
- Year: 2025
-
Photographs:Edmund Sumner
-
Manufacturers: Grohe, Bharat flooring and tiles, Daikin, Dtale Modern, Fenesta, G M Veneers and Ply, Jaipur Rugs, Jay Jalaram Brick Works, Lamp shaper, Harshita Jhamtani Designs, Parrees
-
Lead Architects: Deepak Gugarii, Rashi Saanson

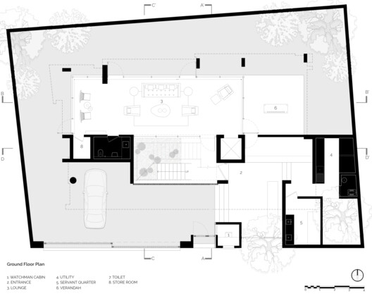
Text description provided by the architects. Brick House is a recently completed private residence located in the heart of Pune's dense urban fabric. Occupying a compact footprint of 4500 square feet, the design is a considered response to the spatial constraints and climatic challenges of its context. The project is rooted in a conscious reinterpretation of traditional Indian architectural principles while integrating a restrained material palette and passive design strategies suited for contemporary urban living.































