
-
Architects: Lousinha Arquitectos
- Area: 3595 m²
- Year: 2023
-
Manufacturers: Saint-Gobain, BRUMA, CS Coelho da Silva, Velux
-
Lead Architect: Paulo Lousinha

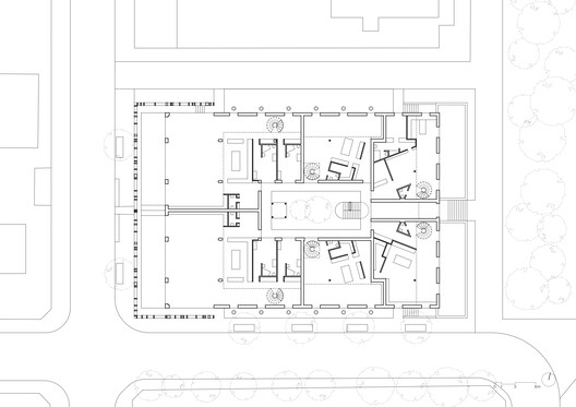
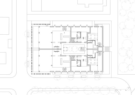
Text description provided by the architects. The former Assembleia da Granja occupies an entire block in the centre of Praia da Granja. Built in the late 19th century, it emerged from the summer life of the time and became a reference point in the social landscape of the place. Figures such as King Carlos I, Queen Amélia, Eça de Queirós, Camilo Castelo Branco, and Sophia de Mello Breyner were regular visitors. Ramalho Ortigão called the Granja “the most glorious, the freshest, the cleanest of Portugal’s seaside resorts”.



















































