Kiellandsstien Residence / Hoem + Folstad Arkitekter

Kiellandsstien Residence / Hoem + Folstad Arkitekter - Image 2 of 20Kiellandsstien Residence / Hoem + Folstad Arkitekter - Exterior Photography, WoodKiellandsstien Residence / Hoem + Folstad Arkitekter - Interior Photography, Wood, Lighting, ChairKiellandsstien Residence / Hoem + Folstad Arkitekter - Interior Photography, Wood, Lighting, ChairKiellandsstien Residence / Hoem + Folstad Arkitekter - More Images+ 15

More SpecsLess Specs
Kiellandsstien Residence / Hoem + Folstad Arkitekter - Image 2 of 20
© Knut Folstad

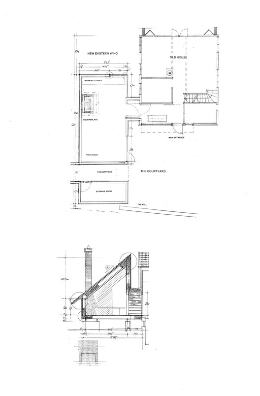
Text description provided by the architects. A small, detached house in an open fjord landscape, surrounded by fields and residential buildings. The homeowner wanted an extension of the house and outdoor areas that were more sheltered from wind and insight from a busy footpath on the seaside of the property.

Content Loader

Project gallery

See allShow less
About this office
Cite: "Kiellandsstien Residence / Hoem + Folstad Arkitekter" 23 Apr 2026. ArchDaily. Accessed . <https://www.archdaily.com/1040029/kiellandsstien-residence-hoem-plus-folstad-arkitekter> ISSN 0719-8884

You've started following your first account!

Did you know?

You'll now receive updates based on what you follow! Personalize your stream and start following your favorite authors, offices and users.