
-
Architects: amass
- Area: 70 m²
- Year: 2025
-
Photographs:Xinxin Guo

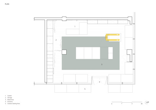
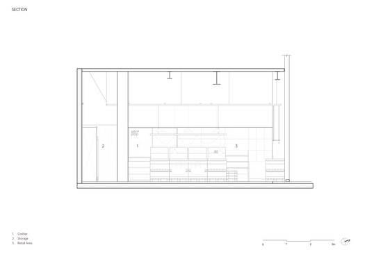
Text description provided by the architects. Senpop is a retail brand that began with socks and has expanded into accessories centered around clothing and textiles. This project reinterprets the processes of production and distribution, transforming the store into a hybrid space between factory, warehouse, and retail.
























