
-
Architects: Kraft Architects
- Area: 111 m²
- Year: 2025
-
Photographs:Takuya Seki
-
Lead Architects: Atsushi Nakamura, Hirari Sato

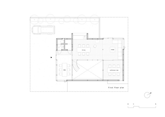
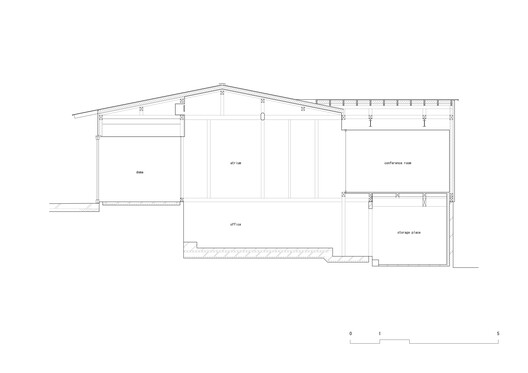
Text description provided by the architects. Kamioka, in Hida City, Gifu Prefecture, is a town shaped by layered histories. Once flourishing with the Kamioka Mine—formerly one of the largest in the East—it has since faced depopulation, aging, and a shortage of successors, conditions now shared by many regional towns in Japan. The client is a company that has long supported everyday life in this area through forest maintenance, hazardous tree removal, specialized logging, snow clearing, civil engineering, landscaping, pest control, and even local festivals. As the organization expanded and a generational transition began, questions about the future of both the company and the region became increasingly urgent.

























