Cardwell Clubhouse / Dubbeldam Architecture + Design

Cardwell Clubhouse / Dubbeldam Architecture + Design - Image 2 of 16Cardwell Clubhouse / Dubbeldam Architecture + Design - Image 3 of 16Cardwell Clubhouse / Dubbeldam Architecture + Design - Image 4 of 16Cardwell Clubhouse / Dubbeldam Architecture + Design - Image 5 of 16Cardwell Clubhouse / Dubbeldam Architecture + Design - More Images+ 11

  • Area Area of this architecture project Area:  151
  • Year Completion year of this architecture project Year:  2025
  • Photographs
    Photographs:Riley Snelling
  • Manufacturers Brands with products used in this architecture project
    Manufacturers:  Lutron, Agway Metals, Bauhaus Doors, Bauwerk Parkett, Blanco, Caesarstone, Design Within Reach, Gentek, Haier, Kolbe Windows & Doors, Liteline, Maibec, Rich Brilliant Willing, Riobel, Stone Tile, Sunpan, TAPS Bath
  • Lead Architects: Heather Dubbeldam
More SpecsLess Specs
Cardwell Clubhouse / Dubbeldam Architecture + Design - Image 7 of 16
© Riley Snelling

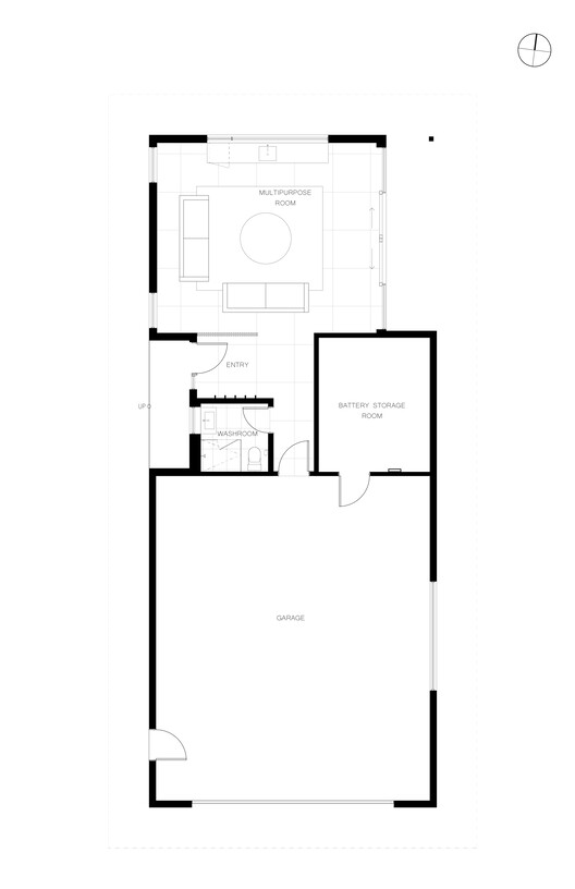
Text description provided by the architects. Set at the edge of a clearing for the photovoltaic array that powers the main cottage on the site, Cardwell Clubhouse is an off-grid hybrid building that is part utility and part leisure hub. Designed by Dubbeldam Architecture + Design for an outdoors-oriented family who spend much of their time on the site immersed in nature and active pursuits, the clubhouse functions as the site's central social and activity hub. It combines a multipurpose clubhouse room – doubling as a flexible guest suite – with a garage that stores outdoor leisure equipment for activities like racquet sports, cross-country skiing, snowshoeing, and more. An adjacent outdoor court for tennis, basketball, and pickleball (created in the clearing necessitated by the solar array), along with areas for bocce, horseshoes, and children's games, reinforce the clubhouse's role as a destination for gathering and play.

Content Loader

Project gallery

See allShow less
About this office
Cite: "Cardwell Clubhouse / Dubbeldam Architecture + Design" 03 Apr 2026. ArchDaily. Accessed . <https://www.archdaily.com/1040000/cardwell-clubhouse-dubbeldam-architecture-plus-design> ISSN 0719-8884

You've started following your first account!

Did you know?

You'll now receive updates based on what you follow! Personalize your stream and start following your favorite authors, offices and users.