Capuchinas House / LABarq

Capuchinas House / LABarq - Interior Photography, Living Room, Wood, Sofa, Table, ChairCapuchinas House / LABarq - Image 3 of 27Capuchinas House / LABarq - Interior Photography, Kitchen, Wood, CountertopCapuchinas House / LABarq - Image 5 of 27Capuchinas House / LABarq - More Images+ 22

Santiago de Querétaro, Mexico
  • Architects: LABarq
  • Area Area of this architecture project Area:  477
  • Year Completion year of this architecture project Year:  2026
  • Photographs
    Photographs:Ariadna Polo
  • Manufacturers Brands with products used in this architecture project
    Manufacturers:  ANKUI, DFC, Procesos en Mármoles Querétaro
  • Lead Architect: Juan Carlos Kelly
  • Category: Houses
  • Design Team: Ixchel Muñoz, Paulina Moreno, Saúl Cabrera
  • General Construction: SPEC
  • Engineering And Consulting > Structural: Juan Carlos Cisneros
  • City: Santiago de Querétaro
  • Country: Mexico
More SpecsLess Specs
Capuchinas House / LABarq - Image 5 of 27
© Ariadna Polo

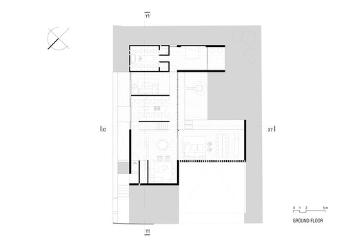
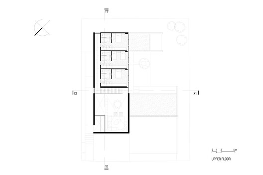
Text description provided by the architects. In the suburban landscape of Querétaro, where housing often follows pre-established schemes, Casa Capuchinas proposes an architectural identity built from a single material.

Content Loader

Project gallery

See allShow less
About this office
Cite: "Capuchinas House / LABarq" [Casa Capuchinas / LABarq] 31 Mar 2026. ArchDaily. Accessed . <https://www.archdaily.com/1039990/capuchinas-house-labarq> ISSN 0719-8884

You've started following your first account!

Did you know?

You'll now receive updates based on what you follow! Personalize your stream and start following your favorite authors, offices and users.