
-
Architects: Bernardes Arquitetura
- Area: 7930 m²
- Year: 2023
-
Photographs:Fernando Guerra | FG+SG
-
Lead Architects: Thiago Bernardes, Dante Furlan, Fausto Sombra

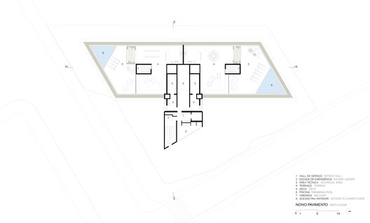
Text description provided by the architects. Implanted on a corner lot between two streets in the western part of São Paulo, the Pascoal Vita Building stands out for its striking geometry, softened by the gardens that surround the entire construction and establish a continuity with the surrounding landscape.
























