
-
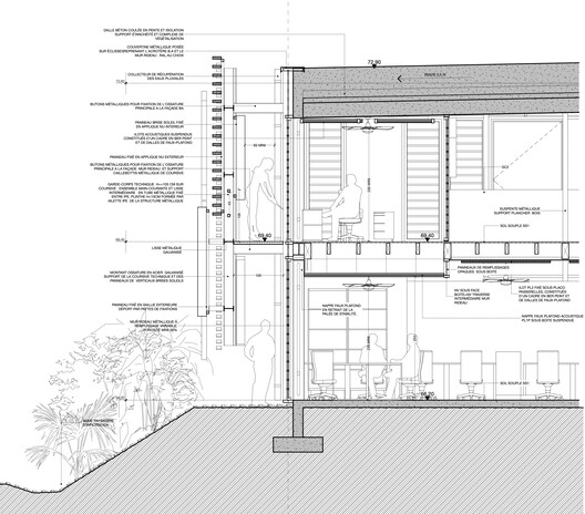
Architects: TT Architecture
- Area: 6770 m²
- Year: 2023
-
Photographs:Loris Gazut
-
Manufacturers: Fibres, Krugell, ONDULIT
-
Lead Architects: Pascal Marcé, Éric Hugel

Text description provided by the architects. The Health Sciences Training and Research Unit in Saint-Pierre (Université de La Réunion) is conceived as an inhabited park. Built volumes and landscaped areas engage in dialogue with the broader campus, reflecting the synergies of academic life.






































