
-
Architects: Studioninedots
- Area: 257 m²
- Year: 2025
-
Photographs:Sebastian van Damme
-
Manufacturers: Bouwmag, Seves Glassblock
-
Structural Engineer: De Ingenieursgroep BV, Romijn Bouw

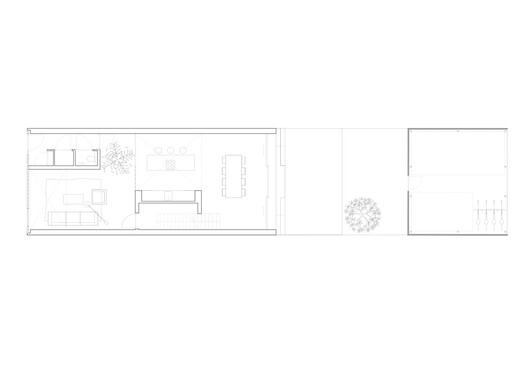
Text description provided by the architects. Made of stacked boxes, Light House reimagines the home as a vertical landscape of light and air. A couple with two children, long rooted in Amsterdam, approached us with a simple yet generous request: design a home defined by connection — between themselves and their children, while also interacting with the surrounding environment. From that single ambition, they entrusted us with an almost complete carte blanche.
































