
-
Architects: studio edwards
- Area: 900 m²
- Year: 2023
-
Photographs:Peter Bennetts
-
Lead Architects: Ben Edwards & Nancy Beka

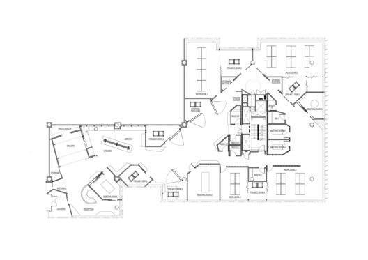
Text description provided by the architects. Nestled within the traditional lands of the Wurundjeri/Woiwurrung people of the Kulin Nation, Today Design Workspace is located within a 12-story office block in the vibrant neighbourhood of Collingwood. Within this space, a 900m² blank canvas has been meticulously shaped to foster collaboration and innovation for the digital agency Today Design. It stands as a beacon of inclusivity, welcoming clients, collaborators, and their team. A defining feature of this project is its unwavering commitment to sustainability.

































