
-
Architects: Dominique Coulon & associés
- Area: 4554 m²
- Year: 2024
-
Photographs:Eugeni Pons

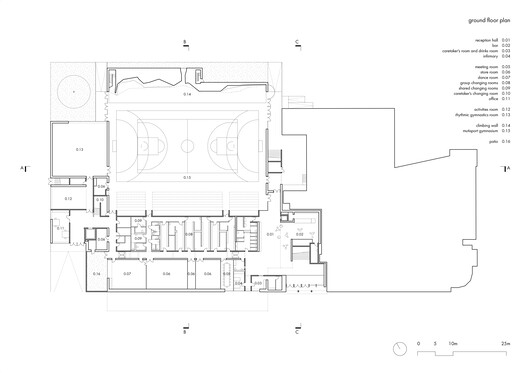
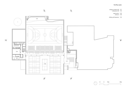
Text description provided by the architects. Our task here was to create a contemporary space within an existing one that dates back to 1960. The town's municipal gymnasium and theatre formed a historical whole, but the site's sports facilities needed to be modernized to host major competitions and cultural events. A desire for architectural coherence and respect for the existing built heritage guided our approach. So, we preserved the stone wall that gave visual structure to the whole site and that now serves as a link between periods of time. We also kept the original entrance portico, which remains the landmark it always has been for the town's inhabitants. The forms of the gymnasium's facade were borrowed from those of the existing theatre. With its tall, vertical openings and its solid sections alternating with glazed portions, this sports center – called "le SPOT" (for "le Site Polyvalent Omnisport de Thionville") – extends the theatre as if the two buildings were created at the same time and as if the new edifice were honouring the site's heritage while placing it firmly in modernity.



































