MS House Museum / UNO MÁS UNO Arquitectos

MS House Museum / UNO MÁS UNO Arquitectos - Image 2 of 27MS House Museum / UNO MÁS UNO Arquitectos - Image 3 of 27MS House Museum / UNO MÁS UNO Arquitectos - Image 4 of 27MS House Museum / UNO MÁS UNO Arquitectos - Image 5 of 27MS House Museum / UNO MÁS UNO Arquitectos - More Images+ 22

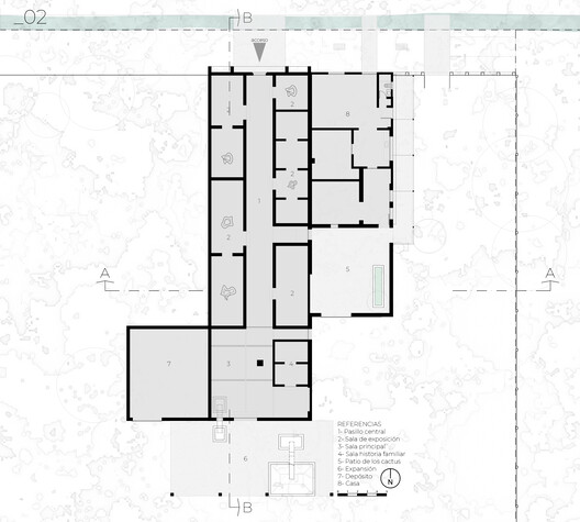
  • Area Area of this architecture project Area:  750
  • Year Completion year of this architecture project Year:  2023
  • Photographs
    Photographs:Luis Abba Estudio
  • Lead Architects: Nahuel Salcedo, Celeste Gómez Lahoz
More SpecsLess Specs
MS House Museum / UNO MÁS UNO Arquitectos - Image 2 of 27
© Luis Abba Estudio

Text description provided by the architects. In General Alvear, Mendoza, an old winery stands, whose origins date back to 1924, when its first tanks housed the wine of the Hidalgo family. However, in the late 1970s, after being abandoned, the passage of time and lack of care left the building practically in ruins. In 2015, four decades later, an heir of the family, endowed with artistic and cultural vision, acquired the structure with the purpose of transforming it into his atelier, personal museum, and exhibition hall.

Content Loader

Project gallery

See allShow less
About this office
Cite: "MS House Museum / UNO MÁS UNO Arquitectos" [Casa Museo MS / UNO MÁS UNO Arquitectos] 23 Mar 2026. ArchDaily. Accessed . <https://www.archdaily.com/1039765/ms-house-museum-uno-mas-uno-arquitectos> ISSN 0719-8884

You've started following your first account!

Did you know?

You'll now receive updates based on what you follow! Personalize your stream and start following your favorite authors, offices and users.