
-
Architects: Frederico Bicalho Arquitetura
- Area: 600 m²
- Year: 2025
-
Photographs:Jomar Bragança
-
Manufacturers: Alutec, Deca, Docol, Interpam, Olga Movelaria, Portobello, Salva, Stone Raja
-
Lead Architect: Frederico Bicalho

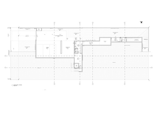
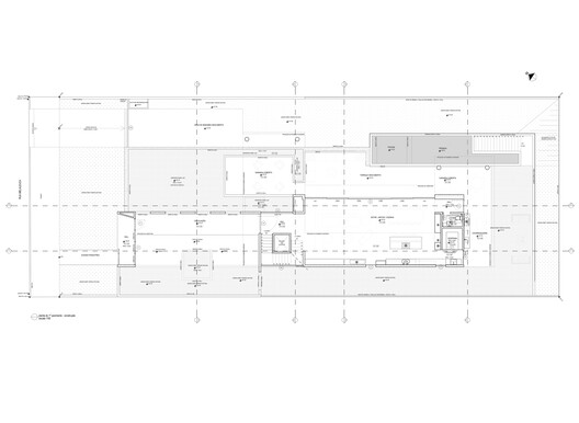
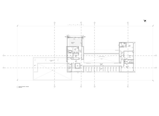
Text description provided by the architects. Set on a steep terrain, Casa GM was designed based on a longitudinal layout that enhances the view of the mountains and ensures privacy from future neighboring constructions.
























