
-
Architects: Mork-Ulnes Architects
- Area: 110 m²
- Year: 2025
-
Photographs:Joe Fletcher
-
Manufacturers: Caesarstone, Quantum Windows & Doors, Sierra Pacific Windows

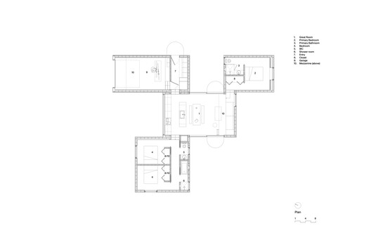
Text description provided by the architects. Situated at an elevation of over 6000' (1800 m), Staggered Cabin deploys shed-roofed volumes to integrate onto a sloping site where South Lake Tahoe meets the foot of the mountains beyond.

















