Convention Center IIT Hyderabad / IITH Campus Design Team of the University of Tokyo + NIHON SEKKEI + APL design workshop

Convention Center IIT Hyderabad / IITH Campus Design Team of the University of Tokyo + NIHON SEKKEI + APL design workshop - Interior Photography, Concrete, ColumnConvention Center IIT Hyderabad / IITH Campus Design Team of the University of Tokyo + NIHON SEKKEI + APL design workshop - Interior PhotographyConvention Center IIT Hyderabad / IITH Campus Design Team of the University of Tokyo + NIHON SEKKEI + APL design workshop - Exterior PhotographyConvention Center IIT Hyderabad / IITH Campus Design Team of the University of Tokyo + NIHON SEKKEI + APL design workshop - Interior Photography, ConcreteConvention Center IIT Hyderabad / IITH Campus Design Team of the University of Tokyo + NIHON SEKKEI + APL design workshop - More Images+ 32

  • Iith Campus Design Team Of The University Of Tokyo (Schematic Design): Yozo Fujino (Team Leader), Hidetoshi Ohno (Design Director), Kohei Oshima, Kazutaka Tonomura, Rumi Kimura, Junko Tamura (Administration)
  • Nihon Sekkei (Schematic Design Support, Design Development): Takeshi Endo*, Yoshiyuki Tobe, Yoshiki Nishimoto, Mikako Oshima
  • Apple Design Workshop (Schematic Design Support, Design Development): Hideki Eguchi, Yohei Ikai*
  • Iith Campus Design Team Of The University Of Tokyo (Structure): Jun Sato (Structural Advisor) Nihon Sekkei (Structural Engineering): Hideo Kobayashi, Koji Nishikawa, Yoko Imatomi*, Yasutaka Tanaka*
  • Nihon Sekkei (Mep Engineering): Shuzo Ishikawa*, Noboru Tamamura, Yosuke Otani, Shigeki Hario
  • Supervision: HCP
  • Construction: L&T Technology Services
  • City: Hyderabad
  • Country: India
More SpecsLess Specs
Convention Center IIT Hyderabad / IITH Campus Design Team of the University of Tokyo + NIHON SEKKEI + APL design workshop - Interior Photography, Concrete
© Masaki Hamada (kkpo)

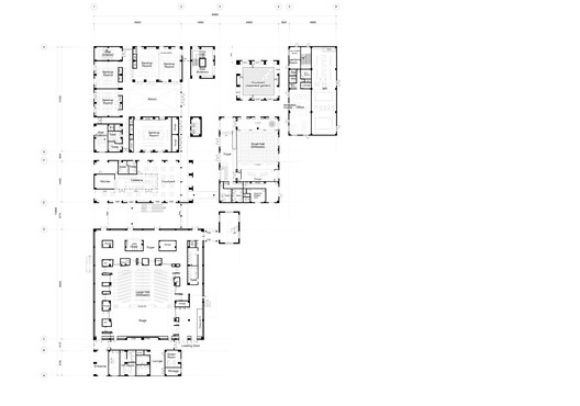
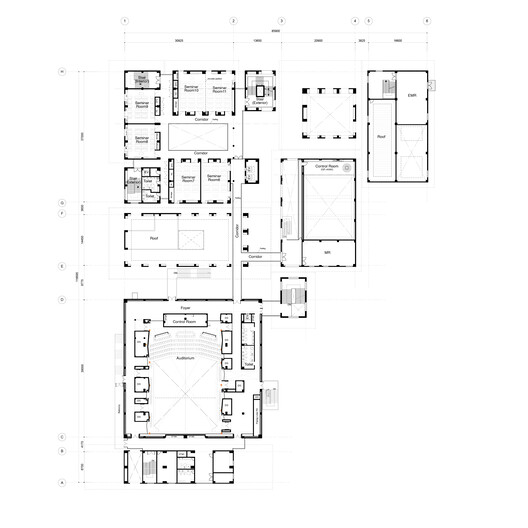
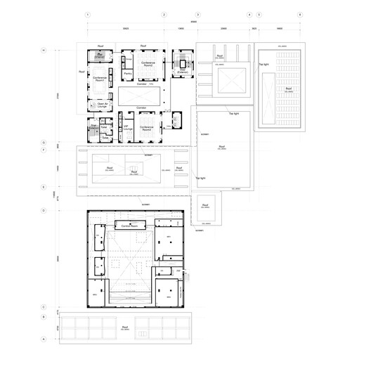
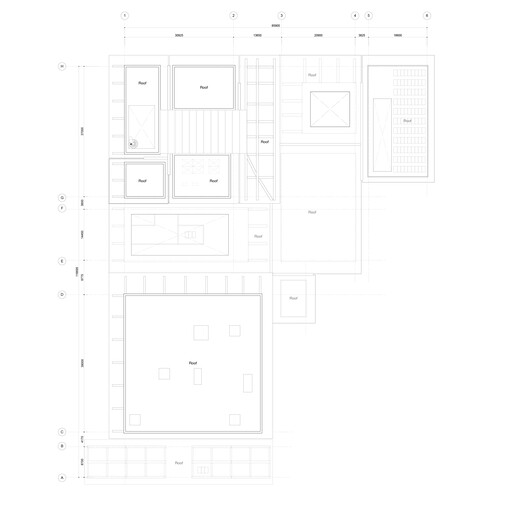
Text description provided by the architects. The Convention Center is part of the comprehensive campus development of the Indian Institute of Technology Hyderabad (IITH), developed through collaboration between the Japanese government and IITH, with the design led by the IITH Campus Design Team at the University of Tokyo.

Content Loader

Project gallery

See allShow less
About this office
Cite: "Convention Center IIT Hyderabad / IITH Campus Design Team of the University of Tokyo + NIHON SEKKEI + APL design workshop" 17 Mar 2026. ArchDaily. Accessed . <https://www.archdaily.com/1039660/convention-center-iit-hyderabad-iith-campus-design-team-of-the-university-of-tokyo-plus-nihon-sekkei-plus-apl-design-workshop> ISSN 0719-8884

You've started following your first account!

Did you know?

You'll now receive updates based on what you follow! Personalize your stream and start following your favorite authors, offices and users.