
-
Architects: Impepinable Studio
- Area: 280 m²
- Year: 2025
-
Manufacturers: Artemide, Bene USM, Lebrel, Muuto, Notson, VitrA
-
Lead Architect: Gabriela Barrera

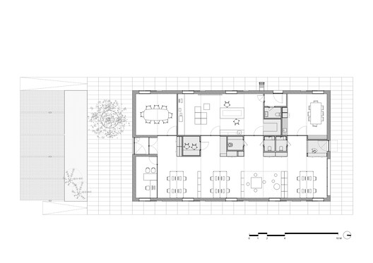
Text description provided by the architects. Agrosemillas’ offices are set within an agro-industrial landscape shaped by the scale of large vehicles, logistical infrastructures, and production processes rather than by the scale of people. The complex stands beside a national road that separates it from the small town of El Peral — a municipality of 660 inhabitants — and is surrounded by vast agricultural fields with few immediate references. The character of the place emerges both from this territorial condition and from a climate defined by strong seasonal contrasts and recurrent episodes of torrential rain. Work rhythms follow the cycles of the harvest, alternating quieter periods with phases of continuous activity.































