
-
Architects: Nikken Sekkei
- Area: 561784 m²
- Year: 2023
-
Photographs:Koji Horiuchi [Shin Shashin Kobo], Ote Camera
-
Lead Architects: Nikken Sekkei Ltd

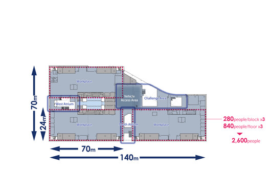
Toward activities centered on "things" – This is a new research and development facility of automaker SUBARU's main plant. SUBARU is a pioneer of technologies and systems known to everyone today, and its unique manufacturing approach and obsessive attention to detail have cultivated a loyal fan base. However, recent increases in workloads have led to organizational and operational "silos," creating challenges with respect to sharing tacit knowledge and fostering a more collaborative mindset. Additionally, designers had limited opportunities to interact with actual "things" or users, making it difficult to get external information and inspiration.
































