
-
Architects: MEAN* (Middle East Architecture Network)
- Year: 2026
-
Photographs:Salva Lopez
-
Architect of Record: AK Studio

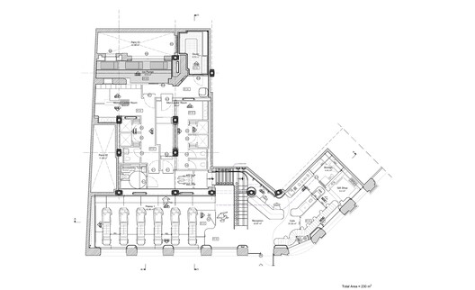
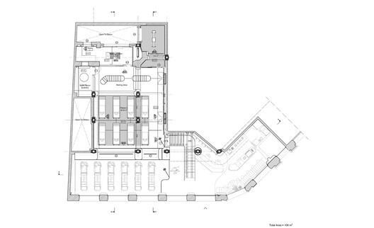
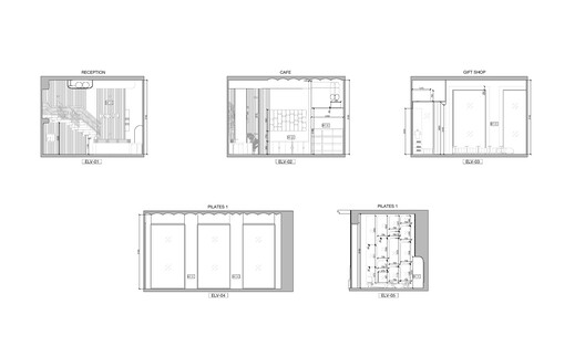
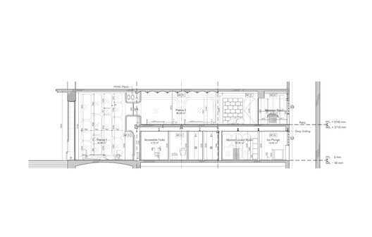
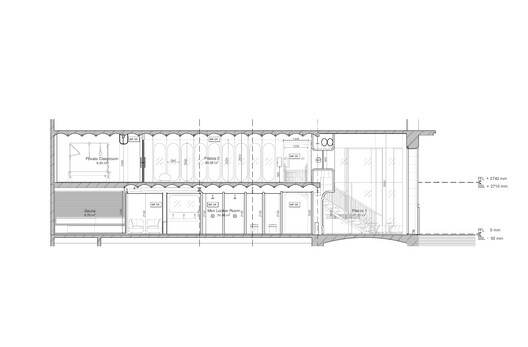
Text description provided by the architects. Occupying a former ground-floor commercial unit, the existing interior carried the accumulated traces of successive tenants, including uneven walls, residual structures, and fragmented layouts. Local planning regulations required the exterior facade to remain untouched, concentrating all architectural intervention within the historic envelope. Within these constraints, the project operates as an architectural rehabilitation, transforming a deep and irregular interior into a continuous spatial sequence.



































