
-
Architects: amass
- Area: 410 m²
- Year: 2024
-
Photographs:Xinxin Guo
-
Manufacturers: NL 能亮现代手工砖

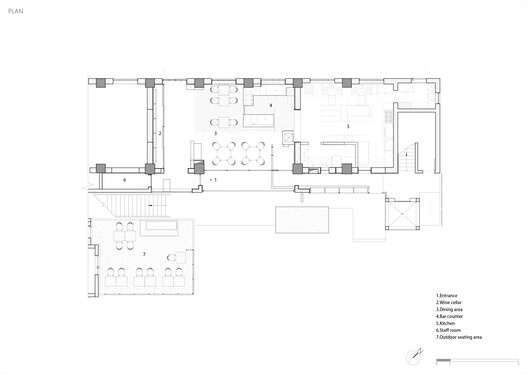
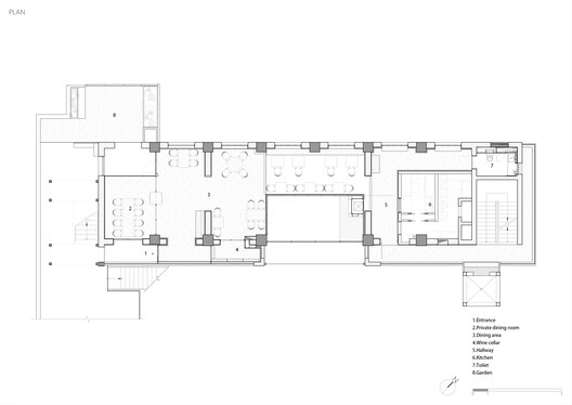
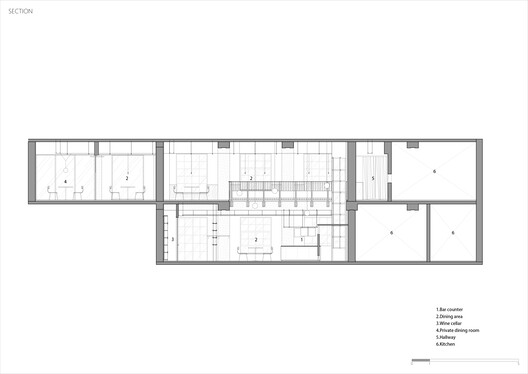
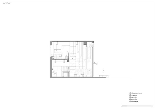
Text description provided by the architects. Located within the renovated commercial complex Temple Lane in Chengdu, Spring Patio is a Yunnan restaurant and bar designed by amass. The project explores how new spatial elements can grow lightly beneath the preserved structural framework of an existing building. The design strategy focuses on retaining and revealing the original structure. Exposed brick, concrete and structural elements remain visible, while the interior intervention is conceived as a light layer—almost like a sketch drawn over the existing architecture. Contemporary functions are inserted with restraint, and readily available industrial materials are widely used to establish a dialogue between new and existing elements.


































