
-
Architects: Sens Architects
- Area: 20000 m²
- Year: 2025
-
Photographs:Qingshan Wu
-
Lead Architects: Zhang Juntian, Sun Hongfei

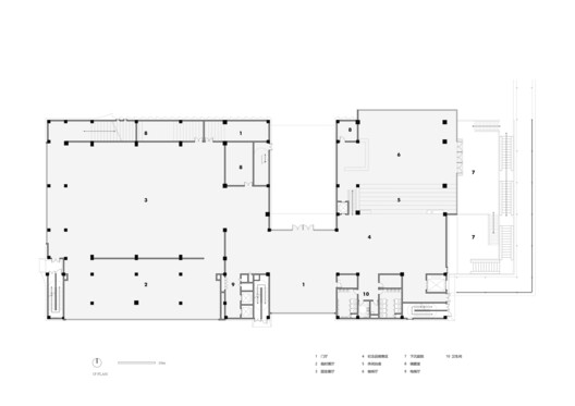
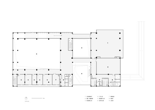
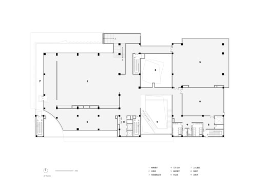
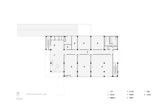
Text description provided by the architects. The Haining Nature Exhibition Center is a comprehensive public building within the Haining International Flower Industry Park. It can serve as an experience hall for organizing agricultural exhibitions in the park, as well as undertaking industrial docking activities and other functions. It can become a cultural and artistic center for the future development of the surrounding area. The Natural Art Exhibition Center, as a venue for various industrial activities, information exchange conferences, and cultural and artistic exhibitions, is not only an important space for showcasing the achievements of rural industrial revitalization, but also a combination of pastoral art and life culture.








































